Langgata 1

Til leie omgående eller etter avtale

Attraktivt næringslokale til leie omgående

Attraktivt næringslokale i Langgata 1 i Stavanger, med sentral beliggenhet og god eksponering.

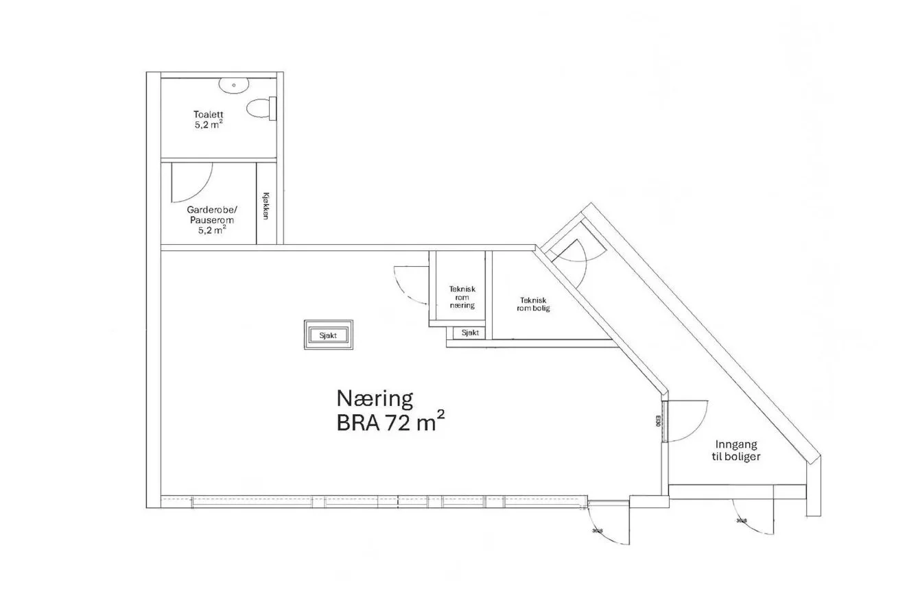
Lokalet har et bruksareal på ca. 72 kvm BTA og ligger i et område med høy aktivitet og god kundestrøm.

Det er kort vei til kollektivtransport, dagligvare, bakeri og øvrige servicetilbud, med Nytorget og Pedersgata som nærmeste naboer.

Lokalet er romslig og funksjonelt utformet, med lite kjøkken/pauserom, garderobe og moderne toalettfasiliteter. Det egner seg godt til virksomheter innen butikk, service, helse, velvære og skjønnhet, som for eksempel hudpleie, frisør eller negledesign.

Eiendommen ble renovert for få år siden og fremstår i god stand, med lyse veggflater og slitesterkt laminatgulv. Nåværende leietaker er House of Healing.

Ved interesse kontakt oss på:

Neste
Neste

Pedersgata 56-58